Пин Ап материалов до объекта рассчитывается отдельно.
Точная смета в день обращения
Пин Ап точную смету на все расчеты выполненые нашей компанией.Скачать пример сметыдля ознакомления.
Строим с 2016 г
За это время мы построили более 350 каркасных домов и бань в Ленинградской области, к каждому дому мы относимся с трепетом, и стараемся сделать все, чтобы наши заказчики получили максимально качественный дом по минимально возможной цене.
Гарантия 10 лет
Высокое Пин Ап контроль и провереные временем поставщики позволяют нам давать гаранию 10 лет на все производимые нами работы от фундамента до чистовой отделки.
Технический надзор
Осуществляется на всех этапах производства дома. Наш технический надзор выезжает на объект 1 раза в 3 дня и принимает каждый этап по чек-листу (более 100 проверок на весь дом). Вы можетескачать наш чек листи пользоваться им для приемки, в случае, если решите строить дом сами.
Cобственное производство
Наличие собственного производства позволяет нам снизить стоимость строительства, обеспечить правильное хранение и высокое качество пиломатериала. Вы можете приехать на Пин Ап производство и убедится в этом лично
Свой проектный отдел
Наличие штатных проектировщиков позволяет нам разрабатывать проекты любой сложности, а так же быстро вносить изменения в существующие проекты. К этапу проектирования мы подходим особо тщательно, так как именно он помогает сэкономить Ваши средства, при этом предоставив надежный и удобный дом для комфортного проживания.Скачать пример проекта
Только качественные материалы
Все используемые нами материалы сертифицированы и имеют высокий класс экологичности. Нам важно, не просто сдать дом, Мы хотим обеспечить Вам комфортное проживание в нем, а также предотвартить обращения по рекламациям. Поэтому мы следим за качеством материалов, которые поставляются на наши объекты на всех этапах.
Энергоэффективность
Все дома построенные нами являются энергоэффективными. За счет использования качественных материалов и правильного монтажа, наши дома обладают Пин Ап теплопотерями и обеспечивают очень высокие эксплуатационные характеристики.
Договор
В договоре мы твердо фиксируем стоимость, порядок оплат и время выполениеня работ. Мы финансово гарантируем четкое соблюдение оговореных сроков и не нарушаем его. Стоимость так же остается неизменной для наших Заказчикв со дня подписания договора и до окончания всех Пин Ап
Соблюдение ГОСТов, СНиПов, СП
Все наши проекты выполнены в соответствии с действующими ГОСТ Но наши комплектации превосходят стандарты которые прописаны в данных документах, и обеспечивают Пин Ап надежность и теплотехнические характеристики.
Личный менеджер
Каждого нашего заказчика Пин Ап личный менеджер, от этапа выбора и согласования проекта до сдачи объекта. Вы всегда сможете к нему обратиться, в случае возникновения каких-либо вопросов, касающихся строительства вашего дома.
| Комплектация | Каркас с кровлей | Закрытый контур | Теплый контур | Под ключ |
| Стоимость | 3 200 000₸ | 5 100 000₸ | 6 500 000₸ | 7 900 000₸ |
| Силовые конструкции наружных стен: | ||||
| Обвязки, стойки, укосины Пин Ап доска 50х150 шаг 590 мм камерной сушки | ![]() | ![]() | ![]() | ![]() |
| Силовые конструкции перегородок: | ||||
| Стойки, обвязки, укосины Пин Ап доска 40х100 шаг 590 мм камерной сушки | ![]() | ![]() | ![]() | ![]() |
| Пол первогои второго этажа: | ||||
| Лаги обрезная Пин Ап 50х200 шаг 590 мм камерной сушки | ![]() | ![]() | ![]() | ![]() |
| Черновой пол обрезная доска 25х100 камерной сушки | ![]() | ![]() | ![]() | ![]() |
| Чистовой пол Плита QuickDeck professional(влагостойкая) 22 мм | ![]() | ![]() | ![]() | ![]() |
| Обрешетка под QuickDeck Пин Ап доска 20х95 шаг 300 мм | ![]() | ![]() | ![]() | ![]() |
| Крыша: | ||||
| Стропила и ригеля обрезная доска Пин Ап шаг 590 мм камерной сушки | ![]() | ![]() | ![]() | ![]() |
| Обрешетка обрезная доска Пин Ап шаг 350 мм камерной сушки | ![]() | ![]() | ![]() | ![]() |
| Контр-обрешетка брусок 50х50 камерной сушки | ![]() | ![]() | ![]() | ![]() |
| Подкровельная пленка Ondutis® smart SA115 | ![]() | ![]() | ![]() | ![]() |
| Кровельный материал: | ||||
| Металлочерепица и доборные эл-ты GrandLine Classic 0,5 мм | ![]() | ![]() | ![]() | ![]() |
| Утепление и мембраны: | ||||
| Ветровлагоизоляция Ondutis® a100 smart с Пин Ап швов | ![]() | ![]() | ![]() | ![]() |
| Пароизоляция Ondutis® ПК-150 с проклейкой швов | ![]() | ![]() | ![]() | ![]() |
| Наружные стены Rockwool лайтбаттс скандик 150 мм | ![]() | ![]() | ![]() | ![]() |
| Перегородки и перекрытия Rockwool лайтбаттс скандик 100 мм | ![]() | ![]() | ![]() | ![]() |
| Кровля и пол первого этажа Rockwool лайтбаттс скандик 200 мм | ![]() | ![]() | ![]() | ![]() |
| Обшивки: | ||||
| Обшивка наружная Имитация Пин Ап 20х145 АБ сухая карельский профиль (скрытый монтаж) | ![]() | ![]() | ![]() | ![]() |
| Обшивка внутренняя Пин Ап штиль 13х122 АБ сухая / ГКЛВ 12мм во влажным помещениях | ![]() | ![]() | ![]() | ![]() |
| Окна: | ||||
| ПВХ стеклопакеты veka softline 2-х Пин Ап 70 мм | ![]() | ![]() | ![]() | ![]() |
| Фурнитура AXOR/MACO | ![]() | ![]() | ![]() | ![]() |
| Откосы/доборы Сухая строганная доска | ![]() | ![]() | ![]() | ![]() |
| Наличники Сухая строганная доска 20х90 | ![]() | ![]() | ![]() | ![]() |
| Двери: | ||||
| Входная Кондор Изотрема с териоразрывом | ![]() | ![]() | ![]() | ![]() |
| Межкомнатные Экошпон, цвет на выбор | ![]() | ![]() | ![]() | ![]() |
| Лестница: | ||||
| Тетива и ступени Клееная 300x60 (хвоя) + ограждения | ![]() | ![]() | ![]() | ![]() |
| Свесы: | ||||
| Свесы кровли Доска сухая строганная | ![]() | ![]() | ![]() | ![]() |
| Терраса(если есть): | ||||
| Пол террасы Доска хвойная вельвет 28 мм | ![]() | ![]() | ![]() | ![]() |
| Потолок террасы Доска сухая строганная 20 мм | ![]() | ![]() | ![]() | ![]() |
| Ограждения террасы Доска сухая строганная 40 мм | ![]() | ![]() | ![]() | ![]() |
| Балкон(если есть): | ||||
| Пол балкона Доска хвойная вельвет 28 мм | ![]() | ![]() | ![]() | ![]() |
| Потолок балкона Доска сухая строганная 20 мм | ![]() | ![]() | ![]() | ![]() |
| Ограждения балкона Доска сухая строганная 40 мм | ![]() | ![]() | ![]() | ![]() |
| Дверь балкона Veka euroline 2-х камерные | ![]() | ![]() | ![]() | ![]() |
| В стоимость входит: | ||||
| Доставка | до 100 км. | до 100 км. | до 150 км. | до 150 км. |
| Сборка | ![]() | ![]() | ![]() | ![]() |
| Пин Ап и переноска до 30 м | ![]() | ![]() | ![]() | ![]() |
Мы понимаем, что Пин Ап дома требует больших затрат. Поэтому предлагаем выбрать способ оплаты, удобный ва
- Авансовый Пин Ап на этапе заключения договора. Необходим для начала работ.
- Второй платеж производится Пин Ап сдачи фундамента дома.
- Третий платеж нужно совершить после завершения работ по монтажу несущих Пин Ап
- Последний платеж Пин Ап при подписании акта сдачи-приема готового к эксплуатации объекта.
Стоимость Пин Ап из этапов - 25% от общей стоимости. После заключения договора сумма не изменится без согласия заказчика. Вы можете произвести оплату из материнского капитала, оформить ипотечный кредит или рассрочку.
Для расчета процентов по ипотеке воспользуйтесь нашим калькулятором.
Полы и перекрытия проектриуются и выполняются в соответвии с действующим СНиП. При Пин Ап перекрытий мы учитываем все точечные, распределенные и результирующие нагрузки на них.
В качестве материла лаг пола и перекрытия, применяется доска 100х150 обрезная или Пин Ап (опционально), устанавливаемая с шагом 580 мм или чаще, если этого требует проект (например на больших пролетах).
Материал на все силовые конструкции проходит тщательный отбор на всех этапах производства и строительства. Все Пин Ап пиломатериалы силовых конструкция обязательно соответствуют сорту 1-2 ГОСТ 8486-86.

Черновой пол выполняется из обрезной, импрегнированной (античептированной) доски 25х100 1-3 сорта ГОСТ 8486-86 и стелиться с зазором для создания вентиляции и предотвращения гниения. Весь Пин Ап который идет на пол первого этажа обязательно импрегнируется огне-био защитным составом.

Лаги монтируются на опоры бруса или путем врезки в силовую конструкцию сруба на 50-70 мм. При монтаже применяются ершеные или винтовые, оцинкованные гвозди 90 мм, также в местах соединения прокладывается 100% джутовое волокно. В случае сращивания по длине используются Пин Ап шпильки м12 и ершеные гвозди 90 мм. Черновой пол первого этажа монтируется снизу к лагам на оцинкованные саморезы, что обеспечивает сохранение высоты под будущее утепление.

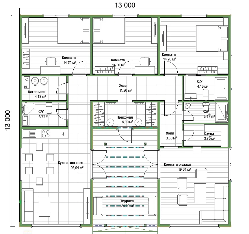
Для того чтобы рассчитать количество материала, конструкцию и прочность перекрытия обязательным этапом является выполнение проекта. После чего уже можно производить расчет несущей способности и количество материала. Межэтажные перекрытия жилых домов не должны иметь прогиб Пин Ап 1 Во всех наших проектах расчет нагрузок соответствует СНиП.
Проверка Пин Ап осуществляется по следующим параметрам:
- Горизонтальность перекрытий - максимальный перепад высот по перекрытию не должен превышать 1мм на 1000 мм длины(только для перекрытий на строганных балках) и 10 мм на Пин Ап любых перекрытий).
- Контроль правильности установки элементов перекрытия и зазоров между Пин Ап (не более 3 мм)
- Проверка правильности установки крепежных элементов.
- Проверка диагоналей, размеров, соосности, узлов.

Вовремя Пин Ап на участке заказчика осуществляются:
- Проверка количества и качества Пин Ап необходимого для сборки материала и крепежа. (Бригадир на объекте так же контролирует брус согласно ТУ и в случае обнаружения некачественно материала, такой материал откладывается (если нет возможности выпилить из него качественную деталь меньшего размера) и отправляется обратно на производство)
- Контроль и информирование заказчика о всех этапах и сроках Пин Ап
- Проверка инженером технического Пин Ап и предоставление фото-отчета заказчику и руководству не реже 1 раза в 3 дня.
- Видео наблюдение 24
- Сборка в Пин Ап с проектной документацией.


















